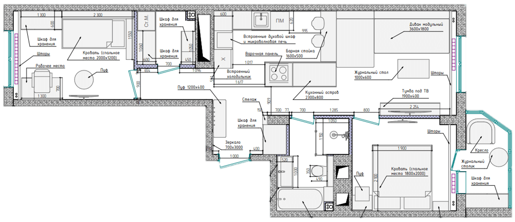
Планировка квартиры Воронеж

1.НАЛИЧИЕ ПОЛНОГО ПЕРЕЧНЯ КВАРТИР В ПРЕДЛОЖЕНИЯХ ЗАСТРОЙЩИКА
ИМИТАЦИЯ ОБЪЕКТИВНОСТИ
ЗАДУМЫВАЛИСЬ ЛИ ВЫ О СЛЕДУЮЩИХ АСПЕКТАХ:
2. ВЫБОР В ПОЛЬЗУ ПЛОЩАДИ
МНОГИЕ ЗАСТРОЙЩИКИ ЧАСТО ПРЕДЛАГАЮТ КВАРТИРЫ, КОТОРЫЕ НЕ ПОЛЬЗУЮТСЯ ПОПУЛЯРНОСТЬЮ. БЕЗ ДОСТУПА К ОБЩЕМУ ЖИЛОМУ ФОНДУ ВАМ МОГУТ ДОСТАТЬСЯ НЕ САМЫЕ ЛУЧШИЕ ВАРИАНТЫ С АНАЛОГИЧНОЙ СТОИМОСТЬЮ.
МНОГИЕ ПОКУПАТЕЛИ ПРИ ВЫБОРЕ КВАРТИРЫ РУКОВОДСТВУЮТСЯ КОЛИЧЕСТВОМ ПРИОБРЕТАЕМЫХ КВАДРАТНЫХ МЕТРОВ, НЕ УДЕЛЯЯ ВНИМАНИЯ НАЛИЧИЮ УЗКИХ КОРИДОРОВ, И НЕ РАССМАТРИВАЯ ЭФФЕКТИВНОСТЬ ПЛАНИРОВОК. СЛЕДСТВИЕМ ЧЕГО ЯВЛЯЕТСЯ ПОКУПКА «ПУСТОЙ» КВАДРАТУРЫ С НУЛЕВЫМ КОЭФФИЦИЕНТОМ ИСПОЛЬЗОВАНИЯ ЖИЛОГО ПРОСТРАНСТВА В СВОИХ СЦЕНАРИЯХ ПРОЖИВАНИЯ В НЕЙ.
3. НЕВНИМАТЕЛЬНОСТЬ К ПЛОЩАДИ КОМНАТ
МНОГИЕ НЕ ЗАМЕЧАЮТ РАЗНИЦЫ МЕЖДУ КОМНАТАМИ ПЛОЩАДЬЮ 10, 12 ИЛИ 14 М². В РЕЗУЛЬТАТЕ ПОСЛЕ ПОКУПКИ МОГУТ ВОЗНИКНУТЬ ПРОБЛЕМЫ С ПОЛНОЦЕННОЙ РАСТАНОВКОЙ МЕБЕЛИ, ТАК КАК ЗАСТРОЙЩИКИ МОГУТ ИЗМЕНЯТЬ МАСШТАБЫ МЕБЕЛИ НА ПЛАНИРОВКАХ, ЧТОБЫ КВАРТИРА КАЗАЛАСЬ БОЛЬШЕ. ПОЭТОМУ ПРИ ВЫБОРЕ ПЛАНИРОВОК В ПЕРВУЮ ОЧЕРЕДЬ НУЖНО ЗАДУМЫВАТЬСЯ О ФУНКЦИОНАЛЬНОСТИ И РАЗМЕРАХ КОМНАТ.
4. УМЕНИЕ ВИДЕТЬ ПЕРСПЕКТИВУ ПРИОБРЕТАЕМОГО ПРОСТРАНСТВА
ПРЕДСТАВЬТЕ СЕБЕ СИТУАЦИЮ, В КОТОРОЙ ВЫ ПЛАНИРУЕТЕ КУПИТЬ КВАРТИРУ, РЕАЛИЗОВАТЬ В НЕЙ ДИЗАЙН СВОЕЙ МЕЧТЫ, И ВМЕСТЕ С ЭТИМ УЛУЧШИТЬ ДИЗАЙН СВОЕЙ ЖИЗНИ
ИНТЕРЕСНО ЧТО БЫ ПОЛУЧИЛОСЬ, ЕСЛИ БЫ ВЫ ЕЩЕ НА ЭТАПЕ ВЫБОРА ЖИЛЬЯ ОБРАТИЛИСЬ К ДИЗАЙНЕРУ ИНТЕРЬЕРОВ?
ВО-ПЕРВЫХ, ПРИ ВЫБОРЕ КВАРТИРЫ ДИЗАЙНЕР СРАЗУ ПРЕДЛАГАЕТ ВАРИАНТЫ ОБУСТРОЙСТВА, ОДНОВРЕМЕННО ПОМОГАЯ ПРИ ЭТОМ РАССЧИТАТЬ РАСХОДЫ, СВЯЗАННЫЕ С ДАЛЬНЕЙШЕЙ РЕАЛИЗАЦИЕЙ РЕМОНТА
ВО-ВТОРЫХ, РУКОВОДСТВУЯСЬ ВАШИМИ ИНТЕРЕСАМИ, УЧИТЫВАЕТ ЭФФЕКТИВНОЕ ИСПОЛЬЗОВАНИЕ КАЖДОГО КВАДРАТНОГО МЕТРА И ВЫБИРАЕТ ДЛЯ ЭТОГО НАИБОЛЕЕ ПОДХОДЯЩУЮ ПЛАНИРОВКУ СРЕДИ ВСЕХ ВОЗМОЖНЫХ ВАРИАНТОВ
В КОНЕЧНОМ ИТОГЕ ВЫ ПОЛУЧАЕТЕ ПРОЕКТ В КОТОРОМ ВСЯ ПЛОЩАДЬ КВАРТИРЫ БУДЕТ ЭКСПЛУАТИРОВАТЬСЯ С МАКСИМАЛЬНОЙ ПОЛЬЗОЙ ДЛЯ ЖИЛЬЦОВ
давайте рассмотрим примеры на реальных ЖК города Воронеж
ТРЕБУЕТСЯ ЧЕТКОЕ ПОНИМАНИЕ О ТОМ, КАК И ЧТО БУДЕТ РАСПОЛАГАТЬСЯ В КВАРТИРЕ. БЕЗ ЭТОГО НЕВОЗМОЖНО ОЦЕНИТЬ УДОБСТВО ПЛАНИРОВКИ В ВЫБРАННОМ ПРОСТРАНСТВЕ.
5. НЕПРАВИЛЬНАЯ ГЕОМЕТРИЯ (СООТНОШЕНИЕ СТОРОН) КОМНАТ
ПРИ ВЫБОРЕ КВАРТИРЫ ВАЖНО УЧИТЫВАТЬ ПРОПОРЦИИ КОМНАТ, ЧТО МОЖЕТ ПРИВЕСТИ К НЕЭФФЕКТИВНОМУ ИСПОЛЬЗОВАНИЮ ПРОСТРАНСТВА И ЗАТРУДНЕНИЯМ В РАССТАНОВКЕ МЕБЕЛИ.
39,45 М2
6,45 МЛН. Р.
42,99 М2
7,34 МЛН. Р.
ЖК «Z-town»
- 3,54 КВ.М;
- 0,89 МЛН.Р.
ОГОВОРЮСЬ, ЧТО НЕ ВПОЛНЕ КОРРЕКТНО КЛЕЙМИТЬ КВАРТИРЫ «ХОРОШИМИ» И «ПЛОХИМИ», ПОТОМУ ЧТО РАЗНЫЕ КЛИЕНТЫ — РАЗНЫЕ ЗАПРОСЫ. МЫ ЖЕ В ПЕРВУЮ ОЧЕРЕДЬ ОПИРАЕМСЯ НА ИСХОДНЫЕ ДАННЫЕ И МАКСИМАЛЬНО ЭФФЕКТИВНОЕ ИХ ИСПОЛЬЗОВАНИЕ.
ИДЕАЛЬНАЯ ГЕОМЕТРИЯ СПАЛЬНИ (1,7:1) ПОЗВОЛЯЕТ ОРГАНИЗОВАТЬ ПРОСТОРНУЮ ГАРДЕРОБНУЮ И ЭРГОНОМИЧНУЮ СПАЛЬНУЮ ЗОНУ
ПОКУПАТЕЛИ ВИДЯТ ЗДЕСЬ ДВЕ ПЛЮС-МИНУС ПОХОЖИЕ ПЛАНИРОВКИ, С НЕЗНАЧИТЕЛЬНОЙ РАЗНИЦЕЙ И БОЛЕЕ КОМФОРТНОЙ СПАЛЬНЕЙ В ПЕРВОМ ВАРИАНТЕ.
КВАРТИРЫ РАСПОЛОЖЕНЫ В ОДНОМ ЖК, В ОДНОМ КОРПУСЕ. РАЗНИЦА В СТОИМОСТИ ПРАКТИЧЕСКИ В МИЛЛИОН, ЧТО СКОРЕЕ ВСЕГО ОБУСЛОВЛЕНО РАЗЛИЧИЕМ В КВАДРАТУРЕ И ОТСУТСТВИЕМ ЛОДЖИИ ВО ВТОРОМ ВАРИАНТЕ.
ОТСУТСТВУЕТ ВОЗМОЖНОСТЬ ЭФФЕКТИВНО ИСПОЛЬЗОВАТЬ ПЛОЩАДЬ ПРИХОЖЕЙ. ПРИ ОРГАНИЗАЦИИ ЗОН ХРАНЕНИЯ ЗАГРОМОЖДАЮТСЯ ПРОХОД
НЕУДАЧНАЯ ГЕОМЕТРИЯ КУХНИ (1:1) УМЕНЬШАЕТ ОБЪЕМ РАБОЧЕЙ ПОВЕРХНОСТИ КУХОННОГО ГАРНИТУРА
ОЧЕНЬ МАЛЕНЬКАЯ ПЛОЩАДЬ. НЕОБХОДИМЫЙ МИНИМУМ ДЛЯ КОМФОРТНОЙ ОРГАНИЗАЦИИ ДУШЕВОЙ ЗОНЫ ИЛИ ВАННЫ – 4,5 М2
НЕИДЕАЛЬНАЯ ГЕОМЕТРИЯ СПАЛЬНИ (1,2:1) ПОЗВОЛЯЕТ ОРГАНИЗОВАТЬ ЭРГОНОМИЧНУЮ СПАЛЬНУЮ ЗОНУ И ЗОНУ ХРАНЕНИЯ В ВИДЕ ШКАФА
ИДЕАЛЬНЫЕ ПЛОЩАДЬ И ГЕОМЕТРИЯ САНУЗЛА
АБСОЛЮТНО НЕНУЖНОЕ НЕЭФФЕКТИВНО ИСПОЛЬЗУЕМОЕ ПРОСТРАНСТВО
ВОЗМОЖНОСТЬ ЭФФЕКТИВНО ИСПОЛЬЗОВАТЬ ПЛОЩАДЬ ПРИХОЖЕЙ ДЛЯ ОРГАНИЗАЦИИ ЗОН ХРАНЕНИЯ
ИДЕАЛЬНАЯ ГЕОМЕТРИЯ КУХНИ (1,4:1) ЭФФЕКТИВНОЕ ИСПОЛЬЗОВАНИЕ РАБОЧЕЙ ПОВЕРХНОСТИ КУХОННОГО ГАРНИТУРА, ВОЗМОЖНОСТЬ УСТАНОВКИ ПОЛНОЦЕННОЙ ОБЕДЕННОЙ ЗОНЫ
ТАКИМ ОБРАЗОМ НЕСМОТРЯ НА ПЕРВОЕ ОБМАНЧИВОЕ ВПЕЧАТЛЕНИЕ – ПРИХОДИМ К ВЫВОДУ, ЧТО ОТНЮДЬ НЕ ВСЕГДА КВАДРАТУРА ЖИЛПЛОЩАДИ ОКАЗЫВАЕТ ВЛИЯНИЕ НА ЭФФЕКТИВНОЕ ИСПОЛЬЗОВАНИЕ ЭТОЙ САМОЙ КВАДРАТУРЫ
- 3,54
- 0,89
М2;
МЛН.Р.
ВОТ ДЛЯ ЧЕГО ТРЕБУЮТСЯ СПЕЦИАЛИСТЫ KETUROV'S GROUP
С ПОМОЩЬЮ ДИЗАЙНЕРА МОЖНО СДЕЛАТЬ ДАННОЕ ПРОСТРАНСТВО ЕЩЕ БОЛЕЕ КОМФОРТНЫМ И УЮТНЫМ ДЛЯ ПРОЖИВАНИЯ
ПОТРАТИВ НА ЭТО, НАПРИМЕР, РАЗНИЦУ В СТОИМОСТИ КВАРТИР
НО ЧТО ВИДИТ ДИЗАЙНЕР?
НИ ДЛЯ КОГО НИ СЕКРЕТ, ЧТО ПЛАНИРОВКИ ЖИЛЬЯ ПРОЕКТИРУЮТСЯ С ФОКУСОМ НА СОЗДАНИЕ МАКСИМАЛЬНОГО КОЛИЧЕСТВА КВАДРАТНЫХ МЕТРОВ В ЗДАНИИ. В РЕЗУЛЬТАТЕ КВАРТИРЫ «ДРОБЯТСЯ», ПРОЕКТИРУЮТСЯ С МАКСИМАЛЬНЫМ КОЛИЧЕСТВОМ КОМНАТ, И ПРОДАЮТСЯ КАК МНОГОКОМНАТНЫЕ КВАРТИРЫ
В ИТОГЕ ПОКУПАТЕЛЬ ИЗ-ЗА ОТСУТСТВИЯ НА РЫНКЕ УСТРАИВАЮЩЕГО ЕГО ВАРИАНТА ВЫНУЖДЕН ПРИОБРЕТАТЬ НЕ СОВСЕМ ТО ЖИЛЬЕ, О КОТОРОМ ОН МЕЧТАЛ
ВЫ ОБРАЩАЛИ ВНИМАНИЕ, КАК СИЛЬНО СЕГОДНЯ ИЗМЕНИЛИСЬ ЗАПРОСЫ НА ПЛАНИРОВКИ КВАРТИР? ЛЮДЕЙ УЖЕ НЕ УСТРАИВАЮТ СТАНДАРТНЫЕ ВАРИАНТЫ. ИМ ХОЧЕТСЯ НОВОГО СОВРЕМЕННОГО УРОВНЯ КОМФОРТА – С БОЛЬШОЙ КУХНЕЙ-ГОСТИНОЙ И МАСТЕР СПАЛЬНЕЙ, НИКАКИХ БЕСПОЛЕЗНЫХ КОРИДОРОВ — МАКСИМАЛЬНО ЭФФЕКТИВНОЕ ИСПОЛЬЗОВАНИЕ КАЖДОГО КВАДРАТНОГО МЕТРА КВАРТИРЫ С СОБЛЮДЕНИЕМ ВСЕХ НОРМ ЭРГОНОМИКИ
ИМЕННО ДЛЯ ЭТОГО И СУЩЕСТВУЮТ ДИЗАЙНЕРЫ ИНТЕРЬЕРОВ, СПОСОБНЫЕ УЧЕСТЬ ВСЕ ЗАПРОСЫ ВЛАДЕЛЬЦА ЖИЛЬЯ, РЕШИТЬ ЗА НЕГО ВСЕ ПРОБЛЕМНЫЕ ВОПРОСЫ И СПРОЕКТИРОВАТЬ ИНДИВИДУАЛЬНУЮ УНИКАЛЬНУЮ ПЛАНИРОВКУ. САМОЕ ИНТЕРЕСНОЕ, ЧТО ПЕРЕПЛАНИРОВКА ЯВЛЯЕТСЯ НАСТОЯЩЕЙ ИНВЕСТИЦИЕЙ, КОТОРАЯ НЕСОМНЕННО УВЕЛИЧИТ СТОИМОСТЬ КВАРТИРЫ В СЛУЧАЕ ПРОДАЖИ КАК РАЗ ЗА СЧЁТ ЕЕ УНИКАЛЬНОСТИ НА РЫНКЕ
СЕГОДНЯ МЕНЯЕТСЯ ПСИХОЛОГИЯ ПОТРЕБЛЕНИЯ ЖИЛЬЯ… ИЗМЕНИЛИСЬ ПОТРЕБНОСТИ ЧЕЛОВЕКА
РАССМОТРИМ ПРИМЕРЫ НАШИХ ПОДХОДОВ ДЛЯ ЖК ЗАСТРОЙЩИКОВ ГОРОДА ВОРОНЕЖ
25,0 = 55,4
нЕ ЭФФЕКТИВНАЯ ПЛОЩАДЬ
ЭФФЕКТИВНАЯ ПЛОЩАДЬ
15,0 = 64,7
нЕ ЭФФЕКТИВНАЯ ПЛОЩАДЬ
ЭФФЕКТИВНАЯ ПЛОЩАДЬ
1. НЕУДАЧНОЕ РАСПОЛОЖЕНИЕ ГАРДЕРОБНОЙ БОЛЬШОЙ ПЛОЩАДИ (5,19 М2) НЕ ПОЗВОЛЯЕТ В ПОЛНОЙ МЕРЕ ИСПОЛЬЗОВАТЬ ВСЕ ПОЛЕЗНОЕ ПРОСТРАНСТВО
2. НЕ ВОЗМОЖНО ПОЛНОЦЕННО ИСПОЛЬЗОВАТЬ САНУЗЕЛ ДЛЯ МАСТЕР-СПАЛЬНИ ИЗ-ЗА МАЛЕНЬКОЙ ПЛОЩАДИ И НЕИДЕАЛЬНОЙ ГЕОМЕТРИИ
3. ИЗ-ЗА НАЛИЧИЯ ТРЕХ ПРОХОДОВ И ДВУХ ДВЕРЕЙ ГАРДЕРОБНАЯ НЕСМОТРЯ НА БОЛЬШУЮ ПЛОЩАДЬ (4,27 М2) НЕ ВЫПОЛНЯЕТ СВОЮ ОСНОВНУЮ ФУНКЦИЮ
4. КОРИДОР С ЧЕТЫРЬМЯ ДВЕРЬМИ ПОДОБЕН ХОЛЛУ В ГОСТИНИЦЕ
5. ОБЪЕДИНЕНИЕ ГАРДЕРОБНОЙ ПЛОЩАДЬЮ 5,23 М2 С КОМНАТОЙ ПОЗВОЛИЛО БЫ БОЛЕЕ ЭФФЕКТИВНЕЕ ИСПОЛЬЗОВАТЬ ЖИЛУЮ ПЛОЩАДЬ ПОМЕЩЕНИЯ
1. САНУЗЕЛ ПОДРАЗУМЕВАЮЩИЙСЯ ДЛЯ МАСТЕР-СПАЛЬНИ РАСПОЛАГАЕТСЯ В КОМНАТЕ ПЛОЩАДЬЮ 10,5 М2, КОТОРУЮ НЕВОЗМОЖНО ПЕРЕКВАЛИФИЦИРОВАТЬ В ПОЛНОЦЕННУЮ МАСТЕР-СПАЛЬНЮ
2. СОВСЕМ КОРОТКАЯ ЧАСТЬ КОРИДОРА
С ЧЕТЫРЬМЯ ПРОХОДАМИ
3. НЕУДАЧНОЕ РАСПОЛОЖЕНИЕ ГАРДЕРОБНОЙ БОЛЬШОЙ ПЛОЩАДИ (7,39 М2) НЕ ПОЗВОЛЯЕТ В ПОЛНОЙ МЕРЕ ИСПОЛЬЗОВАТЬ ВСЕ ПОЛЕЗНОЕ ПРОСТРАНСТВО
4. ПРОХОД В ДВЕ КОМНАТЫ ЧЕРЕЗ ГАРДЕРОБНУЮ МЯГКО ГОВОРЯ ВЫГЛЯДИТ СТРАННОВАТО, А ЕСЛИ ЕЩЕ УЧЕСТЬ ПРОХОД ДО НЕГО ЧЕРЕЗ КОРИДОР, ТО СМОТРИТСЯ ЕЩЕ И УДРУЧАЮЩЕ ИЗ-ЗА ОТСУТСТВИЯ ЕСТЕСТВЕННОГО СВЕТА
ЕДИНАЯ
МАСТЕР-СПАЛЬНЯ
6,0 = 72,9
нЕ ЭФФЕКТИВНАЯ ПЛОЩАДЬ
ЭФФЕКТИВНАЯ ПЛОЩАДЬ
КУХНЯ-
ГОСТИНАЯ
КУХНЯ-
ГОСТИНАЯ
ДЛЯ ВАРИАНТОВ №1 И №2 ИЗ-ЗА НЕЭФФЕКТИВНОГО ИСПОЛЬЗОВАНИЯ ПРОСТРАНСТВА ОБЩУЮ ПЛОЩАДЬ МОЖНО УСЛОВНО УМЕНЬШИТЬ НА 25 И 15 М2 СООТВЕТСТВЕННО. ВАРИАНТ №3 НЕ СОВЕРШЕНЕН, НО С УЧЕТОМ НЕБОЛЬШОЙ ПЕРЕПЛАНИРОВКИ ЕСТЬ ВОЗМОЖНОСТЬ ОРГАНИЗАЦИИ БОЛЬШОЙ СОВРЕМЕННОЙ КУХНИ-ГОСТИНОЙ И БОЛЕЕ УЮТНОГО ВХОДА В МАСТЕР-СПАЛЬНЮ
ВАРИАНТ №4 С НАШЕЙ ТОЧКИ ЗРЕНИЯ ПРАКТИЧЕСКИ ИДЕАЛЕН, А ПРИ ПРОВЕДЕНИИ НЕБОЛЬШОЙ ПЕРЕПЛАНИРОВКИ МОЖЕТ СТАТЬ СОВЕРШЕННЫМ
ОДИН ЖК, ПРАКТИЧЕСКИ ИДЕНТИЧНАЯ ОБЩАЯ ПЛОЩАДЬ И СТОИМОСТЬ, ОДНАКО
ДУМАЮ ЧТО ТЕПЕРЬ ВАМ СТАЛО БОЛЕЕ ПОНЯТНО ДЛЯ ЧЕГО ПРИ ВЫБОРЕ КВАРТИРЫ НУЖЕН ДИЗАЙНЕР
ЕСЛИ ВЫ В ПОИСКЕ КВАРТИРЫ — ЗАПИСЫВАЙТЕСЬ НА
БЕСПЛАТНУЮ КОНСУЛЬТАЦИЮ
СО СПЕЦИАЛИСТАМИ KETUROV'S GROUP.
ОЗНАКОМИТЬСЯ С АЛГОРИТМОМ
ТАРИФА «ЛАКШЕРИ» МОЖНО ЗДЕСЬ
ИМЕННО ПО ТАКИМ АЛГОРИТМАМ РАБОТАЮТ СОТРУДНИКИ KETUROV'S GROUP. ДАРИМ МАКСИМАЛЬНО ВОЗМОЖНУЮ ПОЛЬЗУ ПОКУПАТЕЛЯМ, ОГРАЖДАЯ ОТ ПОСПЕШНЫХ РЕШЕНИЙ И ОШИБОК, В ЦЕЛОМ МЕНЯЯ ЕГО ДИЗАЙН ЖИЗНИ
МЫ ХОТИМ СФОРМИРОВАТЬ НОВУЮ ПОТРЕБИТЕЛЬСКУЮ ПРИВЫЧКУ И УВЕРЕНЫ, ЧТО ПОКУПКА КВАРТИРЫ С ДИЗАЙНЕРОМ В БЛИЖАЙШИЕ ГОДЫ СТАНЕТ НОВЫМ ТРЕНДОМ, ВОЙДЁТ В ОБИХОД И СТАНЕТ НОРМОЙ В ПРОЦЕССЕ ПОКУПКИ ЖИЛЬЯ. ВЕДЬ ВЫ ПОКУПАЕТЕ НЕ КВАДРАТНЫЕ МЕТРЫ, А СВОЮ В ЖИЗНЬ В НИХ
ВЫБОР ЗА ВАМИ!
КАКОЙ РАЗНЫЙ ИТОГОВЫЙ РЕЗУЛЬТАТ…
Made on
Tilda